
项目信息
PROJECT INFORMATION
地址:云浦佳苑
城市:中国·杭州
户型:三室两厅
面积:103㎡
风格:现代极简
设计团队:杭州南鸿装饰 王丽婷
设计单位:浙江南鸿装饰
施工单位:浙江南鸿装饰
作品前言
ABOUT HOME
本案是一套103方的回迁房改造项目。设计简化室内的色彩、线条及其余装饰元素,让空间回归最本质的状态。
清爽的视觉基底,不仅是让居室变得更加敞亮,更重要在于,它弱化了物质表达,使居者可以从外界的繁杂中抽离,专注于生活本身。
居住,不再仅是身体的靠放,而是一种从心出发的体验。


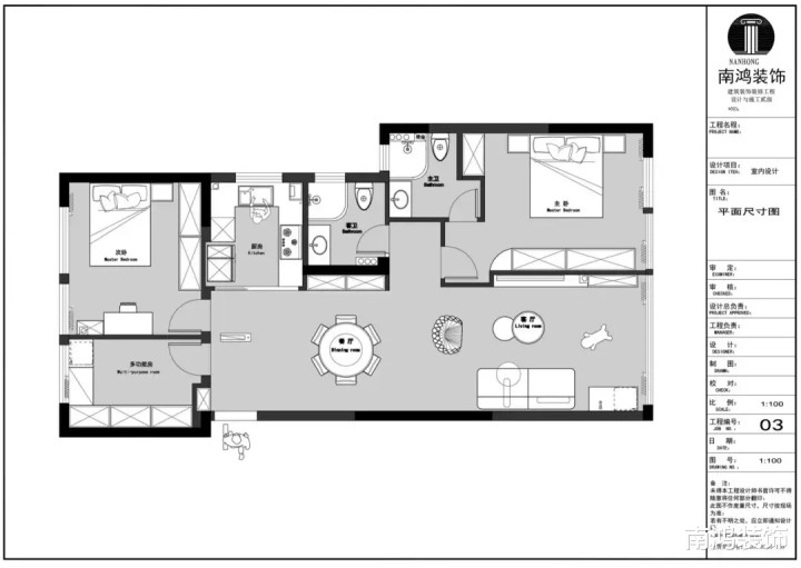
户型方案
LAYOUT DESIGN

实景呈现
CASE APPRECIATION
No.1
客厅


简洁却有力的块面与线条,搭配无主灯设计,构造出满屋清爽。阳台纳入室内并配置生活功能,顶面黑色轨道灯与墙壁上的条形壁灯作巧妙呼应,大量浅色中融入沉稳的深,于对比中刻画极简的张力。


两侧背景墙,一侧铺叙利落的收纳格局,另一侧以简雅对观,雅白色艺术漆肌理细腻,随光线流转显现出微妙阴翳,为空间铺陈出静谧的底质。
No.2
餐厅

餐厅居于动线集中的通道,以圆桌的形式向两侧释放走动空间,顶部悬落一盏飞碟造型吊灯,优雅界定场域。


顶面横梁被轻柔包裹,化作流动而有艺术感的圆弧界面,同时也柔化空间结构,让空间的气质更显轻盈。
No.3
厨房

我们给厨房设计了三联动深玻门,通过三片门扇的衔接、滑动,节省出更多出入空间。内部大面积深灰色的橱柜,不张扬而自有一种分量感。
No.4
卧室

卧室延续外部的从容秩序,黑色皮革床头带来雅致、柔和的依靠,纤细线条的吊灯组合床头柜,减少软装上的体量感,并营造趣味的对比变化。

简洁浅色系烘托适宜好眠的氛围,无把手衣柜轻盈承载着有序储物的功能。


背景墙延续全屋的艺术漆肌理,平静中包含细腻的层次变化。角落里的创意多彩小吊灯,为空间添入了独特的视觉亮点。
No.5
卫生间

卫浴空间铺陈素雅的底色,打造整洁洗沐环境。钻石型淋浴间采用稳固的框架结构,利用角落区域,让每一寸空间都发挥价值。
旺润配资提示:文章来自网络,不代表本站观点。